Апартаменты в VERDAN1A 4 Дубай: площадь 104м², ID 2721, фото и цена
Ссылка скопирована!

Апартаменты в VERDAN1A 4

Район:
DUBAILAND
Проект:
VERDAN1A 4
Застройщик:
Object 1 
Количество Спален
2
Количество Ванных комнат
2
Этаж квартиры

10 из 20

Общая Площадь м²
104 м²
446 081 $
Детали
Цена за м²:
4289$
Мебель:
нет
Состояние:
новый
Статус:
Будет завершен 2028
ID
2721

Особенности и удобства

Детский бассейн
Детская площадка
Зона для барбекю
СПА-центр
Открытый бассейн
Зеленая территория
Тренажерный зал
Рестораны/Кафе
Парная/Сауна
Спортивные площадки
Консьерж-сервис
Лобби
Охрана
Парковка

О проекте

Verdan1a 4 — современный жилой комплекс, расположенный в районе Dubai Land Residence Complex, где концепция проекта строится на гармоничном сочетании динамики города и экологичного пространства. Здесь особое внимание уделено зелёным зонам, открытым территориям и созданию комфортной среды для жизни.

Жителям комплекса доступна разнообразная инфраструктура для отдыха и повседневного комфорта: бассейн с зонами для релаксации, современный фитнес-зал, детская игровая комната и детский бассейн, клубный дом, зона для барбекю, а также благоустроенные террасные сады.

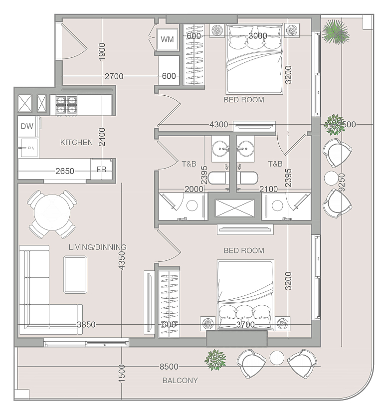
К продаже предлагаются апартаменты с двумя спальнями (Type 03), расположенные на 10 этаже (№1010). Общая площадь составляет около 104,6 м², из которых примерно 74,3 м² занимает жилая зона, а просторный балкон — около 30,5 м².

Планировка продумана до мелочей: просторные жилые зоны, большие окна и расширенное балконное пространство создают ощущение открытости и наполняют квартиру естественным светом. Интерьеры выполнены в светлой нейтральной гамме, что подчёркивает современный стиль и визуально увеличивает пространство.

Из окон открывается вид на территорию комьюнити, создающий атмосферу уюта и спокойствия, при этом вся инфраструктура комплекса находится в шаговой доступности, обеспечивая комфортный ритм городской жизни.

Локация

  • 15 минут до Global Village
  • 25 минут до Burj Khalifa
  • 12 минут до Dubai Outlet Mall 
  • 25 минут до Dubai Mall 
  • 10 минут до Al Habtoor Polo Resort

План оплаты

Стандарт
20% при бронировании
30% в процессе строительства
50% при передаче
30 месяцев после передачи
20% при бронировании
30% в процессе строительства
20% при передаче
30% в течение 30 месяцев после передачи
Похожие предложения