Вилла в Park Greens Дубай: площадь 329м², ID 2448, фото и цена
  • $
  • د.إ
  • £
Ссылка скопирована!

Вилла в Park Greens

Район:

DAMAC HILLS 2

Застройщик:
Damac
Количество Спален
5
Общая Площадь м²
329 м²
879 529 $
Детали
Цена за м²:
2673$
Мебель:
нет
Состояние:
новый
Статус:
Будет завершен 2027
ID
2448

Особенности и удобства

Кинотеатр на воде
Ленивая река
Дзен-сад
Парковка
Спортивные площадки
Рестораны/Кафе
Тренажерный зал
Зеленая территория
Набережная и пляж
Велосипедные/беговые дорожки
Открытый бассейн
Ландшафтный сад
Прямой доступ к парку/променаду
Магазины
Зона для барбекю
Детская площадка
Детский бассейн

О проекте

К продаже предлагается просторная вилла с 5 спальнями в современном жилом комплексе Park Greens, расположенном в районе DAMAC Hills 2. Объект продаётся напрямую от собственника и отлично подойдёт как для комфортного семейного проживания, так и для выгодной инвестиции.

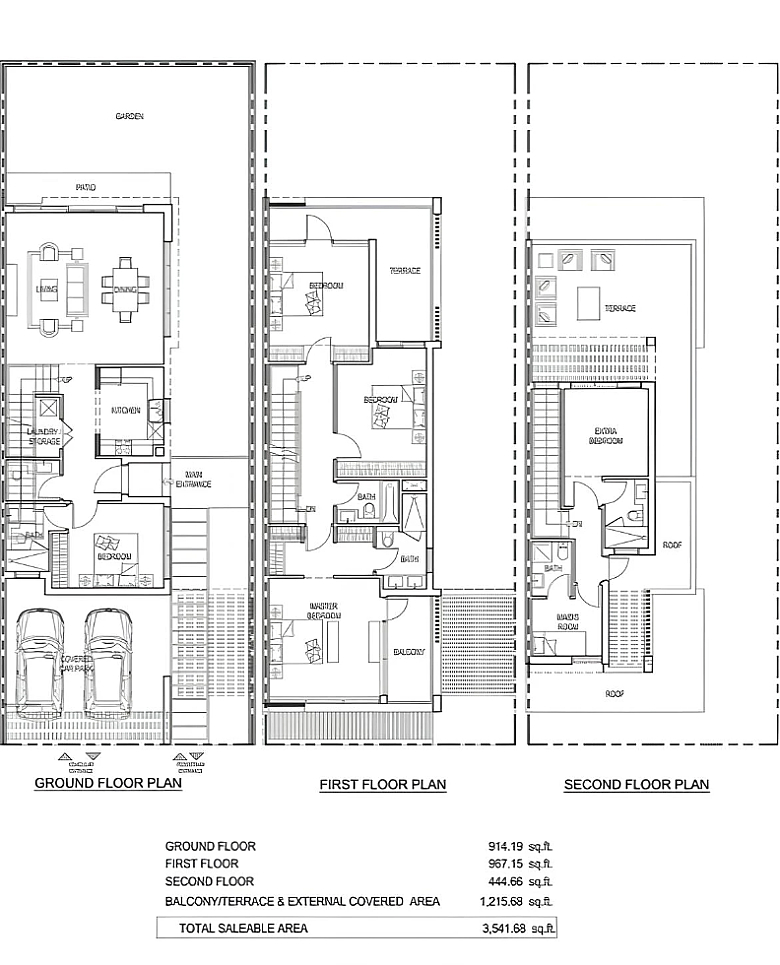
Вилла выполнена в формате дуплекса, занимает 3 этажа и имеет общую площадь 329 м². Продуманная планировка обеспечивает удобное зонирование жилых и приватных пространств, создавая комфорт для большой семьи. В доме предусмотрен гараж, а кухня полностью оборудована современной техникой и готова к использованию.

Park Greens предлагает резидентам богатую курортную инфраструктуру, ориентированную на активный и сбалансированный образ жизни. На территории комплекса расположены пляж Malibu Beach, тренажёрный зал и фитнес-зоны, теннисный корт, футбольное поле, просторные парковочные зоны, плавучий кинотеатр, озеро для рыбалки и танцевальная студия. Все пространства продуманы для отдыха, спорта и общения.

Локация

  • 30 минут до DWC Airport
  • 35 минут до Downtown Dubai
  • 40 минут до DXB Airport
  • 30 минут до Dubai Marina
  • 40 минут до Dubai Mall и Burj Khalifa
  • 15 минут до Aster Medical Centre

Похожие предложения